Kiadó Iroda Székesfehérvár - Várkörút

147 m2Alapterület 3 Szoba
520 000 Ft /Hó Ár
380341Azonosító
További adatok

Utcai Kilátás

Jó állapotú Állapot

Tégla Szerkezet

Gáz (cirkó) Fűtés

Utcán, közterületen Parkolás

Emelet 2

Van Lift

Kiváló Tömegközlekedés

1995 Építés éve

Nyugati Tájolás

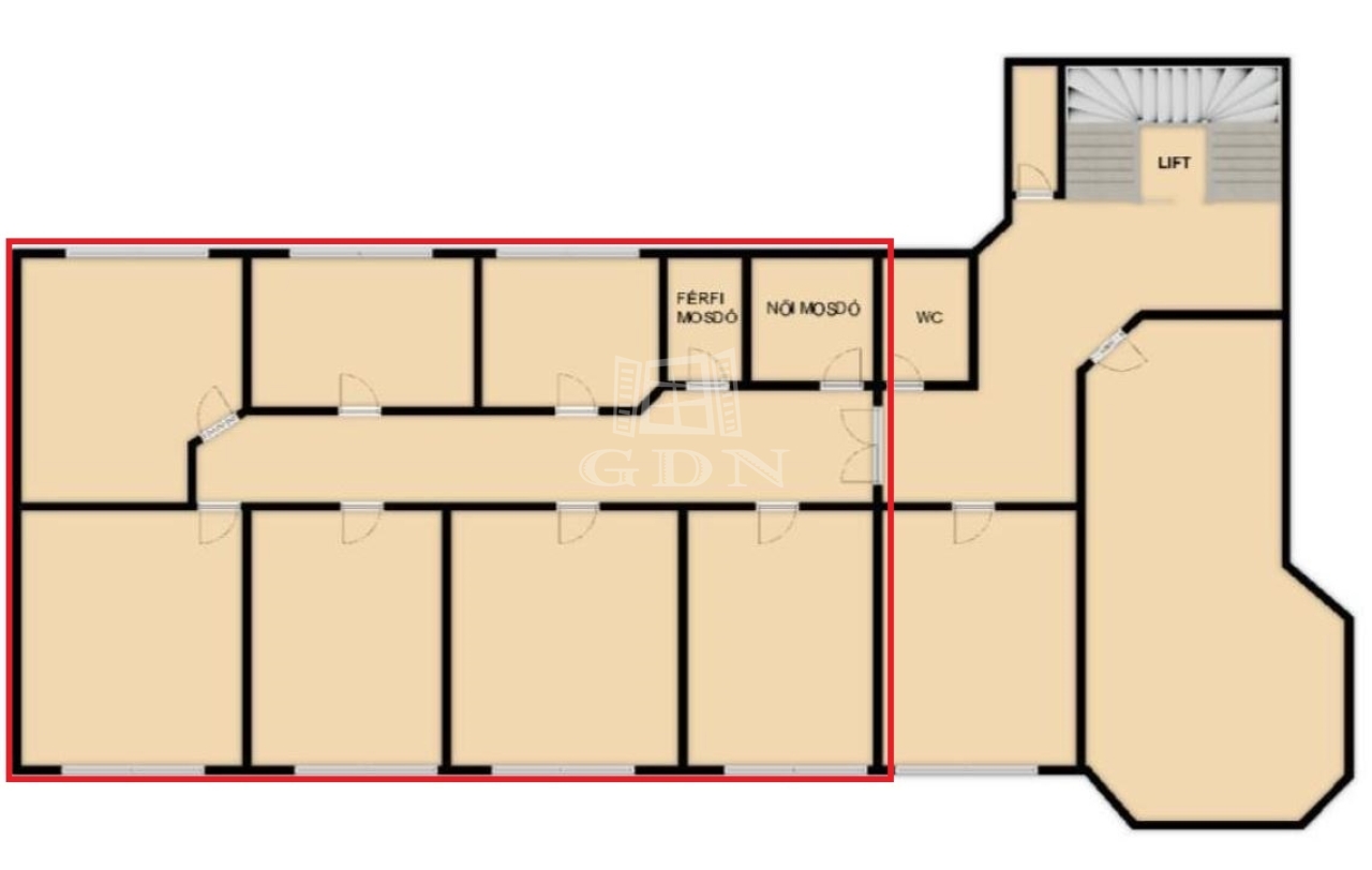
Bip-003526. Várkörúton irodaház második emeletén 147m2 össz. alapterületű több helyiséges ingatlan hosszútávra ill. minimum 1 év időtartamra akár osztva is kiadó!

Az irodaépület tömegközlekedéssel könnyen megközelíthető frekventált helyen, Székesfehérvár belvárosában található. Parkolás az utcán vagy a csupán ~300m-re található parkolóházban megoldott.

Jellemzők:
‣ városközponti elhelyezkedés
‣ liftes irodaházban 4 helyiség
‣ minden helyiség a legmodernebb hűtő-fűtő klímával felszerelt
‣ felszerelt teakonyha
‣ a helyiségek a lépcsőháztól elzárt folyosón helyezkednek el, emiatt alkalmas privát ügyfélforgalom lebonyolítására is.
‣ riasztóval, kamerarendszerrel és beléptetővel felszerelt
‣ közöshasználatú női-férfi mosdó és egykülönálló szolgálati mosdó

Bérleti díj: Egyben: 520ezer Ft/hó+rezsi + 2 hónap kaució
Osztva: 3500Ft/nm/hó+rezsi + 2 hónap kaució
Rezsi: gáz – 170Ft/nm/hó
közösköltség: 250Ft/nm/hó
villany: helyiségenként mérve


Ha felkeltette érdeklődését, hívja irodánkat bizalommal, éljen ingyenes, személyre szabott hitelügyintézés szolgáltatásunkkal. Segítünk továbbá adásvételhez szükséges ügyvédi közreműködésben, energetikai tanúsítvány, valamint értékbecslés elkészítésében.

For English details please send us a message or an e-mail, thank you.
Dudás Ágnes

Dudás Ágnes

Hívjon bizalommal

+36-30-179-Mutasd!

További hirdetéseim

Ingatlaniroda
GDN Ingatlanhálózat - Demeter Ingatlanközpont

Küldjön üzenetet

Visszahívást kérek

Hasonló ingatlanok